古野⑧_4号地

トップページ | 売地情報一覧 | 古野⑧_4号地

売地情報 古野⑧_4号地

売地_古野22号地
取引形態

売主

価格

11,900,000円

所在地

由布市挾間町古野50-11

交通の利便

『古野』バス停より徒歩3分 

土地面積

209.82㎡(63.47坪)

私道負担面積

なし

地目

宅地

用途地域

第一種中高層住居専用地域

建ぺい率

60%

容積率

200%

設備

上水道:公営、下水:合併浄化槽、ガス:個別プロパンガス、電気:九州電力

その他諸経費

-

その他

建築条件付き

<校 区>

由布川小学校まで徒歩8分(600m)

挾間中学校まで徒歩32分(2,5km)

<周辺施設>

由布川幼稚園まで徒歩7分(525m)

由布川保育園まで徒歩7分(530m)

イオン挾間ショッピングセンターまで徒歩20分(1.5km)

大分大学医学部付属病院まで徒歩15分(1.1km)

お問い合わせ

『アークホーム株式会社』
大分県大分市下郡北2丁目1-31
TEL:097-567-0092

宅建業法による免許証番号

  大分県知事 (3) 第3015号

情報登録日

2025年1月25日

【3000万円台で叶える注文住宅】
 
3000万円台で叶える注文住宅

古野⑧4号地 

建物金額2,380万円(税込)+土地
+諸費用+外構+照明・カーテン等含むセットプラン
総額  3,980万円(税込)

 

本プランは一例です。お客様のご要望に応じて自由設計が可能です。

※外観パースはイメージです

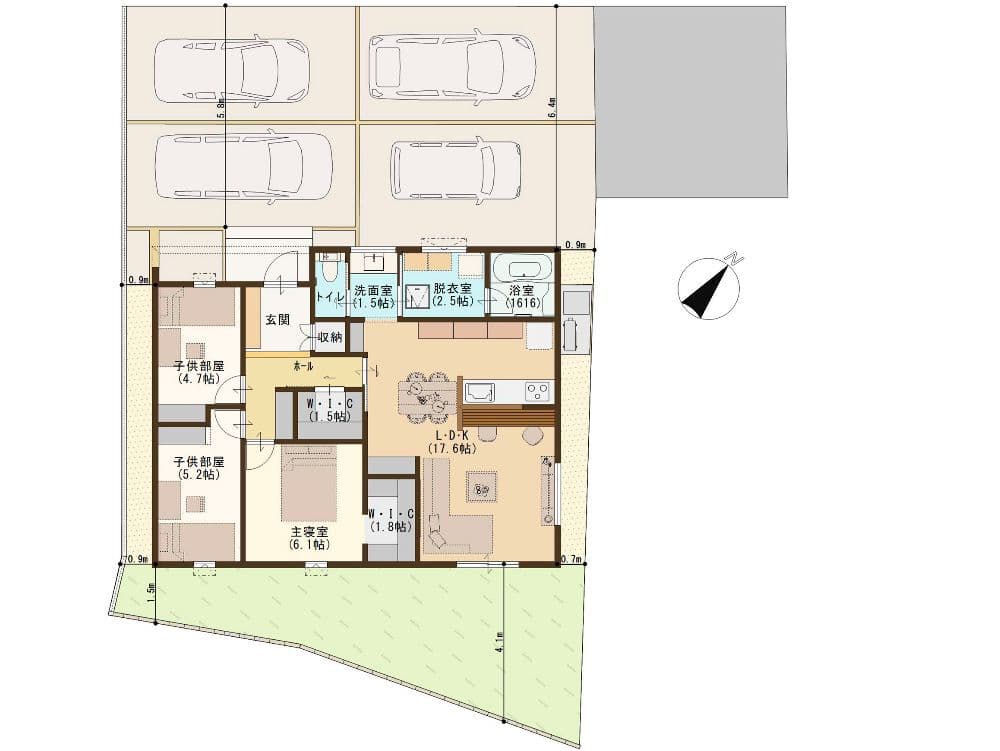
間取り図

売地_古野22号地

配置図

売地_古野22号地

このプランの詳細

建物金額

23,800,000円(税込)

総額

39,800,000円(税込)

建物+土地+諸費用+外構+照明・カーテン等含む

月々返済額(目安)

89,000円程

工事面積

26.34坪

間取り

3LDK+WIC×2+洗面脱衣別

駐車場

4台以上

おすすめポイント

帰宅後からの動線

上着やカバンをかけられるスペース

ワンフロアならではの水周りからWICへの距離感が◎

注釈

・本プランは一例です。お客様のご要望に応じて自由設計が可能です。

・掲載価格は参考プランに基づくものです。間取りや仕様により変動します。

・月々返済額は一例です。(借入条件・金利により異なります)

・詳しい資金計画やプランについては、来場時にご説明いたします。

 

お問い合わせ

『アークホーム株式会社』
大分県大分市下郡北2丁目1-31
TEL:097-567-0092

Googleマップはおおよその位置になりますのでご了承ください。

お問い合わせ

097−567−0092